LAKHTA PARK
Location: Saint Petersburg, Russia
Architects: Anastasia Safianenko, Julia Anikina, Leonid Sobolev
Visualization: Tatiana Kurochkina
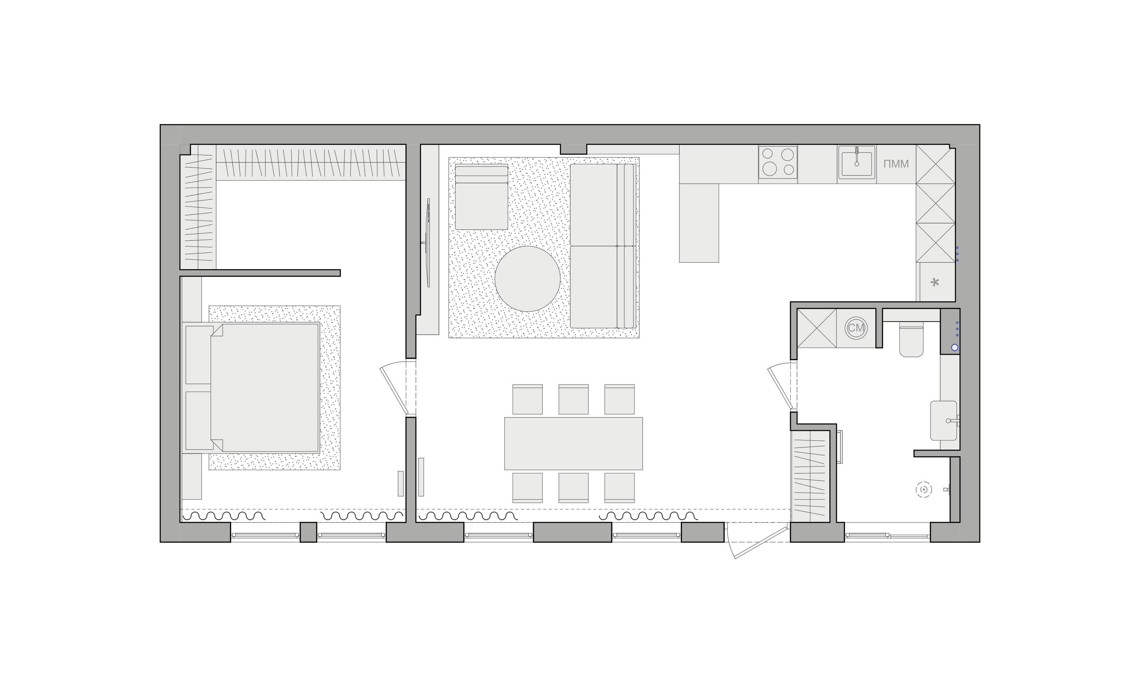
Area: 64 sq.m.
Year: 2021
Status: under construction
 
      
     Загородные апартаменты для временного проживания расположены недалеко от Санкт-Петербурга в тихом, зелёном районе. Хозяин прекрасно знал, каким он видит свой будущий дом: темным, лаконичным, грубым, монолитным. Уют должен был создаваться только при помощи различных сценариев освещения. 
Country apartment for temporary living located in a quiet and green area near Saint Petersburg. Client knew perfectly well how he saw his future home: dark, laconic, rough, monolithic. The cosiness should be created only with the help of various lighting scenarios. 
 
     LIVING ROOM
 
      
      
     
      
     
      
     
      
     
      
     
      
      
     
      
    BEDROOM
 
      
      
     
      
     
      
     BATHROOM
 
      
      
      
     
      
     
      
    PROJECT TEAM
 
     