
Coffee Racer
Saint-Petersburg | 42 sq.m.
Architects: Egor Bogomolov, Catherina Tarasova, Valeria Dzhigil
Visualization: Tatiana Kurochkina
Photo: Sergey Melnikov & Dmitrii Suvorov

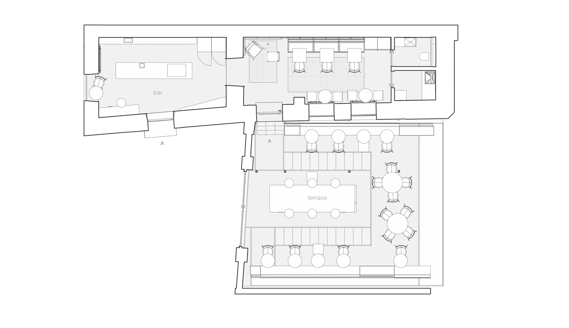
plan

Coffee Racer is a local coffee house that has long been firmly established on the St. Petersburg specialty market. The distinctive feature among the many fresh but often faceless new coffeehouses in St. Petersburg is the distinctive, distinctive corporate style of the establishment



The main objective of the project was to increase the existing coffee shop by adding a second room, conceptually related to the first, which has also undergone renovation. Design embodies the spatial form of our impressions of knowing the business owner and his ideology - the coffee shop is a natural extension of his personality, and it was important to emphasize this delicate and very personal relationship


The client, Ruslan, has already formulated aesthetics in his existing coffee shops - it is largely brutal grunge, in some places chaotically stacked personal vintage finds. Some of the solutions were assembled by him personally (e.g., lighting), somewhere there were photos taken by him during his travels
The name Coffee Racer itself is a reference to "cafe racer" motorcycles for speed rides - their design is optimized to achieve speed and control at the expense of ride comfort. Motorcycles with a hooligan aesthetic and surfer's spirit of freedom poured into the iconic and original interior of the coffee shop - brutal but not crude, trashy and recognizable but not subcultural


axonometry

Continuity of the new design preserves key recognizable materials and elements with a change of context - a table top of Brazilian granite became the front of the central counter, and rusty sheet metal on the wall turned over, oxidized and returned to its place, refreshing the overall look of the hall


curved bench ↓


↑ steel panels integrated in the floor

bench with table ↓


↑ bar zone
Flos lightning ↓







outdoor bench↓


↑ before & after
project team ↓




