Расположение: Санкт-Петербург
Площадь: 140 кв. м.
Год: 2019
Статус: в процессе реализации

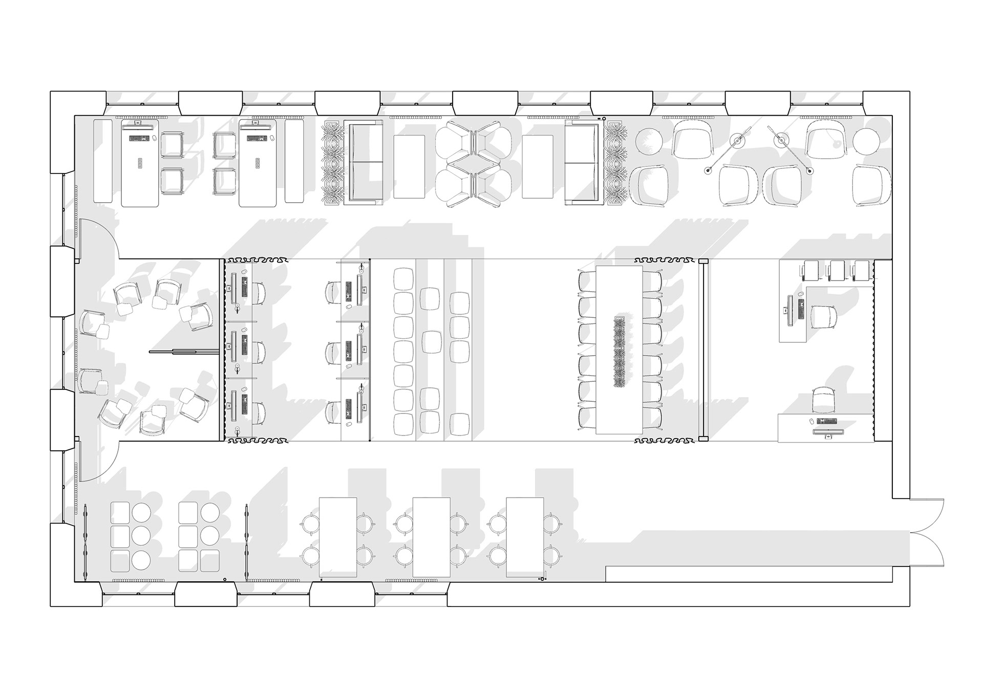
Проект для библиотеки главного корпуса университета ЛЭТИ. Перед нами стояла задачи сделать современное пространство для студентов на базе коворкинга. На площадке предусмотрены места для работы и общения, несколько переговорных, амфитеатр для мероприятий и доступ к единой базе через ПК. В качестве основного акцента мы использовали фирменные цвета университета.

















PROJECT TEAM
