 
      
      
     
      
     
      
      
      
     
      
     
      
      
     
      
      
     
      
     
      
     
      
     
      
     
      
     
      
     
      
      
     
      
     
      
     
      
     
      
     
      
     
      
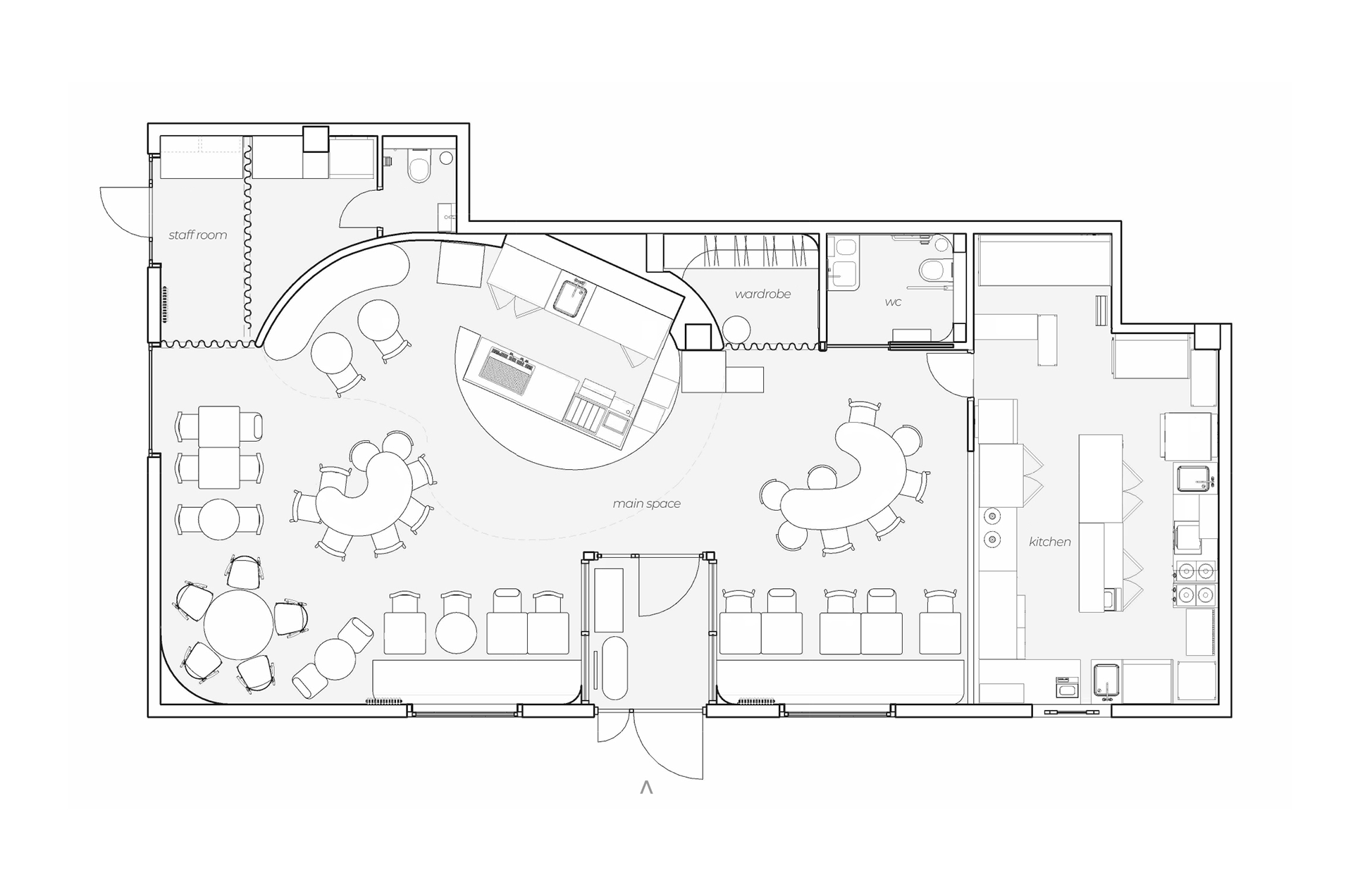
    The design project for the new café by Eggsellent represents a unique blend of modern style and classic architecture. The café's interior contrasts sharply with the building's austere exterior, featuring a symbiosis of colors and shapes inspired by the Eggsellent brand concept. The layout resembles a plate with the bar counter and open kitchen as the central yolk, surrounded by seating areas of various shapes, akin to scattered salad leaves and other ingredients on a plate. The café's design employs a signature color palette of yellow and pink, enhanced with glitter and rounded shapes, reflecting the Eggsellent style. While the initial concept envisioned a brighter and more diverse color scheme, the team opted for a more restrained and refined approach to harmoniously blend the interior with the building's architecture and the urban environment. This resulted in a balance between playfulness and elegance, naivety and rationality, giving the project a unique character and broad appeal
 
      
      
     
      
     
      
      
      
     
      
     
      
      
     
      
      
     
      
     
      
     
      
     
      
     
      
     
      
     
      
      
     
      
     
      
     
      
     
      
     
      
    