Every tail | Veterinary Clinic
London, UK | 2025 | 100.4 sq.m

Architects: Artem Lebedev, Marko Mirkovic, Ruben Movsisyan, Yulia Tsuglenok
Visualizations: Tatyana Kurochkina
Photographer: Varvara Toplennikova



“Every Tail” is a veterinary clinic in London, commissioned by a family couple, Anton and Veronika.




Their idea was to create a pet-friendly space where animals would feel comfortable and owners could spend time in an aesthetically pleasing and thoughtfully designed environment.




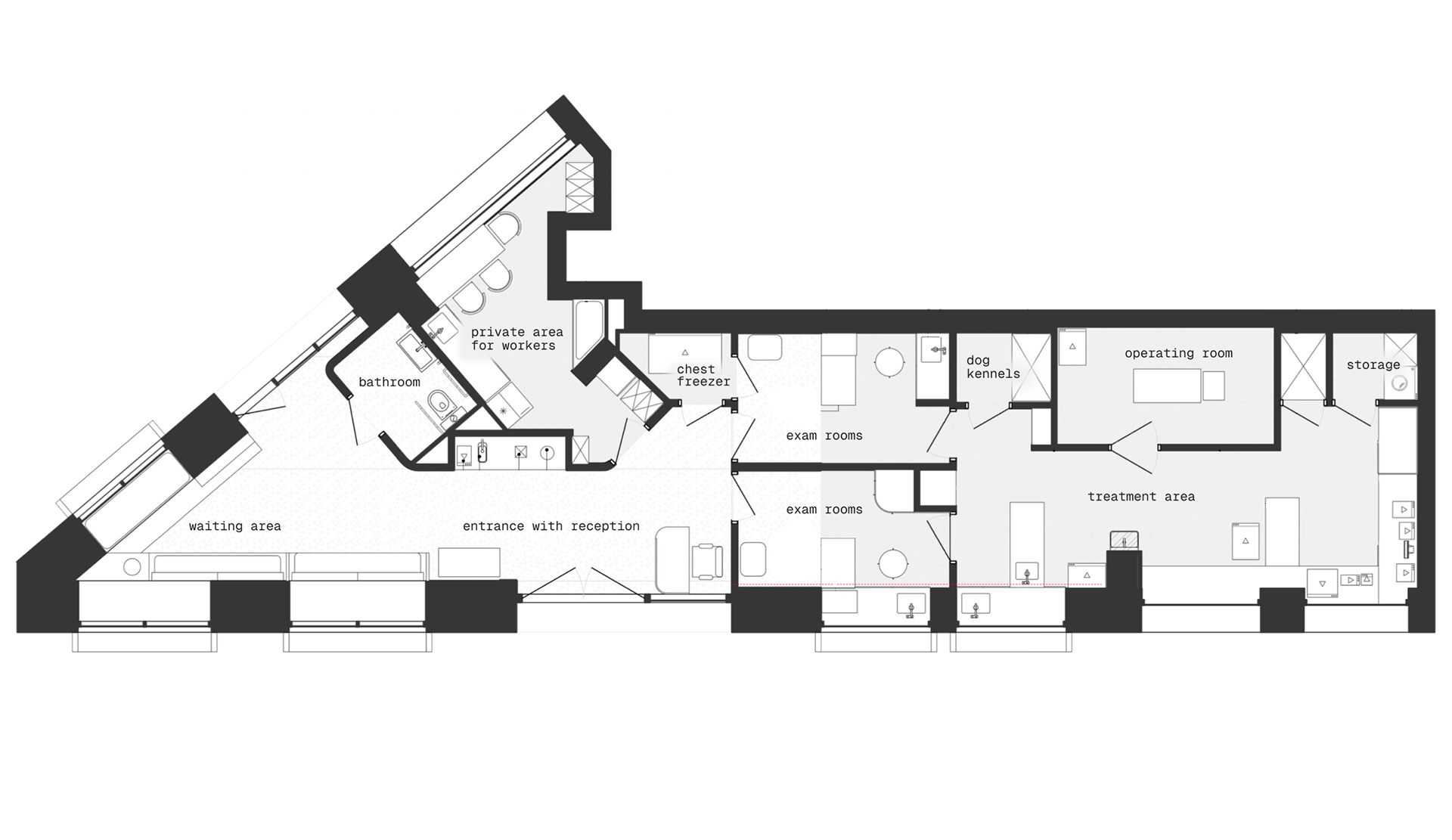
plan ↓


We were tasked with merging care for animals and the professional precision of a medical facility, maintaining a balance between warmth and functionality.




The concept is based on duality: the clinic is both friendly and welcoming to animals while meeting the high standards of veterinary practice. The interior is divided into two segments — the waiting and communication area for owners, filled with soft details reminiscent of the familiar environments of cats and dogs, and the doctors’ working spaces, executed in a more restrained and technological aesthetic.


axonometry

The layout is organized with maximum efficiency. At the entrance, guests are greeted by a reception desk featuring a coffee point for owners and a separate water point for pets. Nearby is the waiting area with a bench upholstered in durable fabric designed to withstand pet claws.




inspiration ↓


The lobby also includes an accessible restroom, staff facilities, and several specialized rooms: consultation and treatment rooms, an operating room with an X-ray zone, a utility and storage area, and two kennel rooms.




↓ operating room
wc ↑


The materials were selected for both durability and comfort: beech veneer panels, painted walls, ceramic tiles, stainless steel, and light gray quartz vinyl flooring with a terrazzo effect.




The procedure area features a suspended acoustic ceiling, while the rest of the rooms have plasterboard ceilings.




Special attention was given to small details: the team avoided mirror panels (to prevent fear or aggression in dogs), chose claw-resistant upholstery for the waiting bench, and designed a safe reception counter with a lockable compartment for equipment.




The project also agreed with British regulations — from the placement of electrical systems to sanitary requirements.


dog kennels ↓ 
↑ exam room




“Every Tail” is an example of a veterinary clinic where design is not merely a background for work but an active tool that reduces stress for both animals and their owners, making a visit to the vet a calmer and more humane experience.




process ↓




↓ project team


just be kidz

follow instagram
Back to Top