 
      
      
      
      
      
      
     
      
     
      
      
      
      
      
      
     
      
     
      
      
      
      
      
     
      
     
      
     
      
      
     
      
     
      
     
      
     
      
     
      
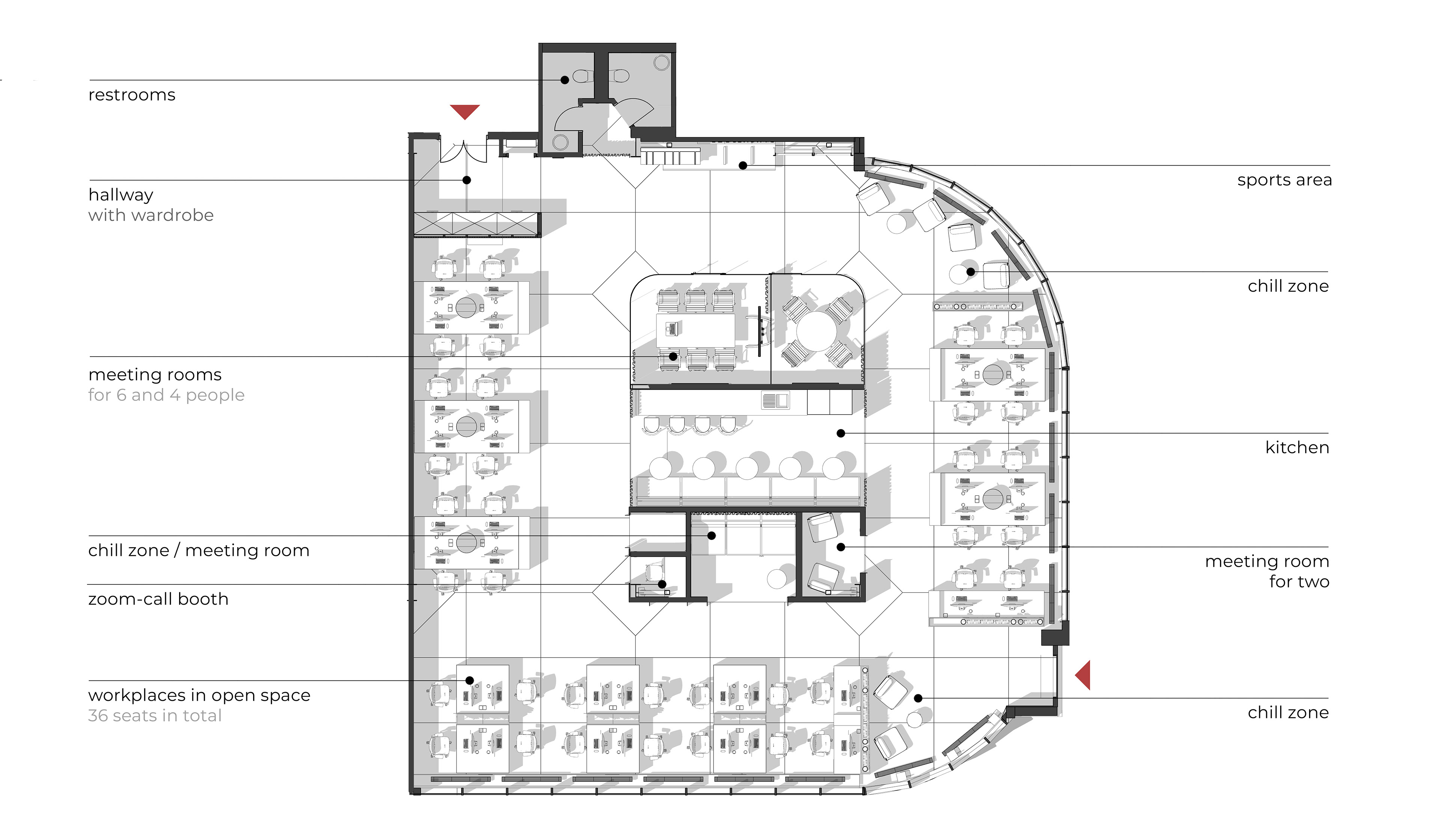
     "Golden Apple" is the largest retailer of beauty products, hailing from Yekaterinburg. The context of the project was initially full of sources of inspiration - Yekaterinburg as an industrial city with a rich history, connection of the company name with ancient Greek myths, the existing head office, located one floor below, with its atmosphere and special, industrial coziness - it was important to "mix but not shake" all this. Of course, we couldn't avoid the core essence of the company, which has become a kind of theme for us about the beauty of imperfection. The agora (Greek ἀγορά) is the square of the ancient Greek polis, the place of civic assemblies, along the perimeter of which craft workshops were usually located. In the layout of the office, this scheme is taken as a basis, with a block of kitchen and meeting rooms acting as a meeting place, and workspaces of the open space in place of the workshops. The main accent device, which serves as a contrast to the monochrome interior
 
      
      
      
      
      
      
     
      
     
      
      
      
      
      
      
     
      
     
      
      
      
      
      
     
      
     
      
     
      
      
     
      
     
      
     
      
     
      
     
     