 
     KitCut | Barbershop
Serbia, Belgrade
2024 | 50 sq.m.
Architects: Ruben Movsisian, Artem Lebedev, Tatyana Kurochkina
Photo: Ilya Ivanov 
      
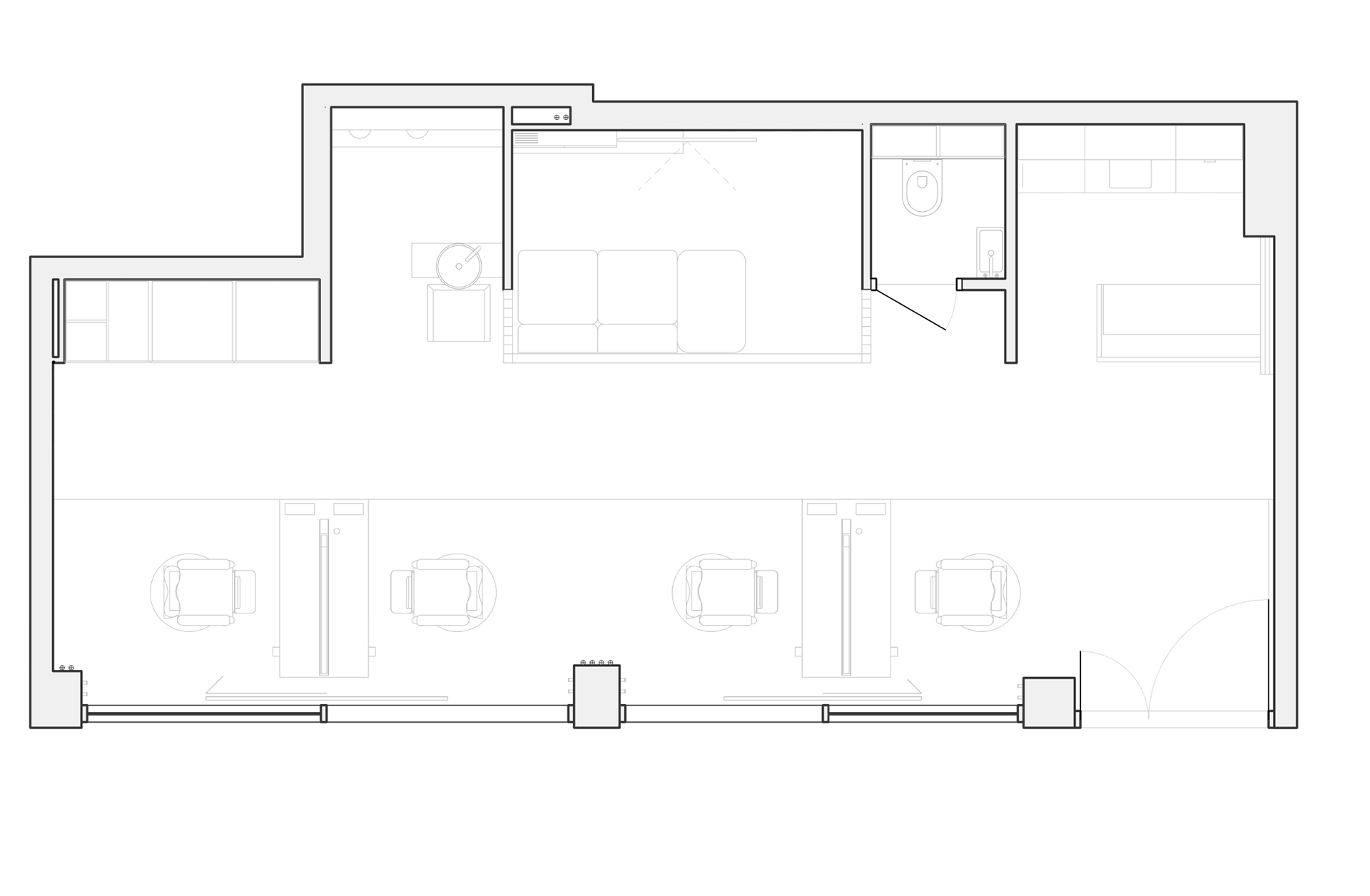
    plan
 
     The KitCut barbershop project in Belgrade began under interesting circumstances. A year ago, the first location was opened in Budva, Montenegro. The client, looking to expand their business, decided to open a second location in Belgrade. Coincidentally, when the project application came through, our KIDZ manager was actually at the Budva barbershop, which made the initial meeting doubly pleasant.
 
      
     
      
    The main objective was to create a unique barbershop that reflects the values of the KitCut brand. We studied what clients appreciate about this brand and how best to convey these ideas in the new space. The layout itself dictated some of our decisions, thanks to spacious glass windows that became an integral part of the concept.
 
      
    A key design element was reflecting the individuality of each client through three volumetric figures, or characters. The first figure is a simple grey cube, a monolithic cabinet within the barbershop space. It represents clients with minimal demands who simply seek a good haircut.
 
     axonometry
 
      
     
      
    The second figure is an LED panel, not only aesthetically eye-catching but also functional – concealing a sewage pipe inside. This limitation was turned into an advantage by highlighting it with the LED panel, reminiscent of a "mohawk," emphasizing the expressive nature of the second character.
 
      
    The third figure is the reception area, executed with meticulous attention. It features carefully folded metal profiles with clear lines and patterns, emphasizing detail and precision.
 
      
     
      
    We also preserved some tiles from the previous tenant, using them to delineate the barber zone with black tiles. This created a line continuing from stainless steel profiles to a mirror near the reception, where clients can assess their haircut before leaving. The mirror visually expands the space, crucial in a compact environment.
 
      
    A technologically-functional solution was the barber stations with inclined mirrors, not only easing work but also facilitating easy communication between barbers, fostering a friendly atmosphere and networking.
 
      
     
      
    The most memorable detail of the barbershop is the structural profiles cut across and placed in various parts of the premises. These elements add uniqueness and functionality to the interior. The profile ornaments create a sense of openness and security, allowing glimpses beyond partitions without entry. 
separating walls ↓
 
      
     
      
    ↑  entrance area zone
 
      
    All of this underscores that if the barbershop pays such attention to interior details, it extends the same care and concern to its visitors.
 
      
    street sign ↓
 
      
     
      
    ↑  lamp installation
 
      
    process ↓
 
      
     
      
     
      
    project team ↓
 
      
     
      
     
      
    