 
     PIMS Dubai Mall | Tea Cafe
Cafe | 86 sq.m.
Architects: Egor Bogomolov, Ivan Gorbunov, Yulia Tsuglenok, Valeria Dzhigil, Tatiana Kurochkina, Ruben Movsisian, Victor Aurov
 
      
     
      
    In the world of beverages, PIMS was a breath of fresh air - a new take on tea and coffee, painstaking work on the recipe and ingredients, and the result is a whole new experience and flavor.
 
      
    And here comes the PIMS
 
     Dubai, a city of the future that grew up in the last century in the middle of the desert, was a similar revelation - and the similarities between these two stories were the inspiration behind our design for the new PIMS flagship in Dubai Mall.
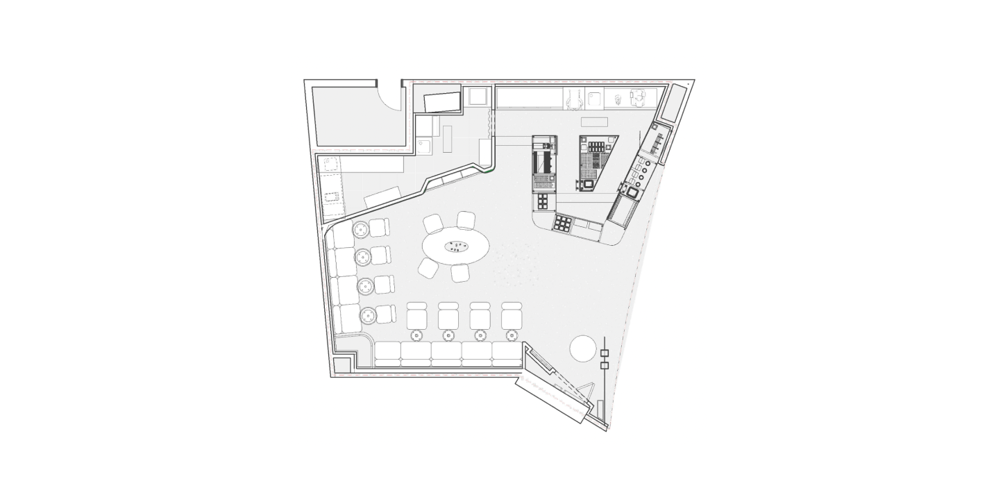
plan
 
     The basis of the interior in a beige neutral palette just symbolizes the very desert - but not so much empty, dry, and lifeless, but cozy and familiar to the Emirati residents. There are practically no corners in the space - all transitions of planes are made smooth, and rounded, both the joints of walls and the transition of the ceiling to the facade. The surface of the walls, flat at first glance, is decorated with relief plaster with horizontal furrows, like the stripes that the wind leaves on a sand dune. The same atmosphere is supported by softly illuminated dried flowers and beige gravel.
 
      
     
      
    In the middle of this desert, a huge silver blob suddenly appears, towards which huge metallic flowers begin to sprout from the ground, intertwining in a bizarre pattern. The central volumetric installation, juxtaposed with a low tea planting, reflects the contrast between PIMS's technology and novelty and the desert. The flower stems and "buds" are made of polished stainless steel and the huge drop-half-sphere is covered with metallic paint, all these elements reflect the entire interior, and importantly, all the guests of PIMS. For the brand, focusing on the customer is as important as possible - and the fact that the centerpiece of the flagship interior is essentially a large mirror is not just for the wow effect. The reflection of the client, which becomes as much a part of the interior as all the other elements, is part of the brand's philosophy.
 
     axonometry
 
     Comfortable seating and coziness were the main criteria when designing the furniture and lighting - spacious sofas and custom-made armchairs are responsible for this. In addition to drinks, PIMS has food and desserts, so we divided the seating into two types - semi-lounge and classic restaurant seating, which differ both in table height and chair type. The central table is also deliberately made lower, and instead of chairs there are poufs in the form of huge boulders of pebbles - this is not only a reference to nature, but also to the traditional seating of the tea ceremony, when everyone sits on cushions on the floor and watches the rituals of the tea master.
 
      
     
      
    The uniqueness of PIMS, a company that promotes tea culture, is reflected in the functional filling of the space. A merchandise area, a tea station, and a huge interactive screen are the elements that not only produce a visual effect but also allow guests to delve deeper into the topic of tea. Each guest can not only try a new drink, but also learn how and from what it is made, buy tea leaves to learn how to brew it at home, and even buy a stylish glass thermos - the scenario of this experience is also fully dictated by the interior.
 
     metal bob light ↓
 
      
     
      
    ↑ tea zone
 
     process ↓
 
      
     
      
     
      
    ↓ project team
 
      
     
      
     
      
     
      
     
      
     
      
     
      
    