 
     Pop-up Office 
2025 | 164.2 sq.m.
Architects: Sonya Plyusnina, Maria Soboleva, Alyona Minaeva
Photographer: Dmitry Suvorov
Photographer: Dmitry Suvorov
 
      
     
      
     
      
    The project is a temporary pop-up office for a company operating at the intersection of science and digital technologies.
 
references ↓
 
      
     
      
     
      
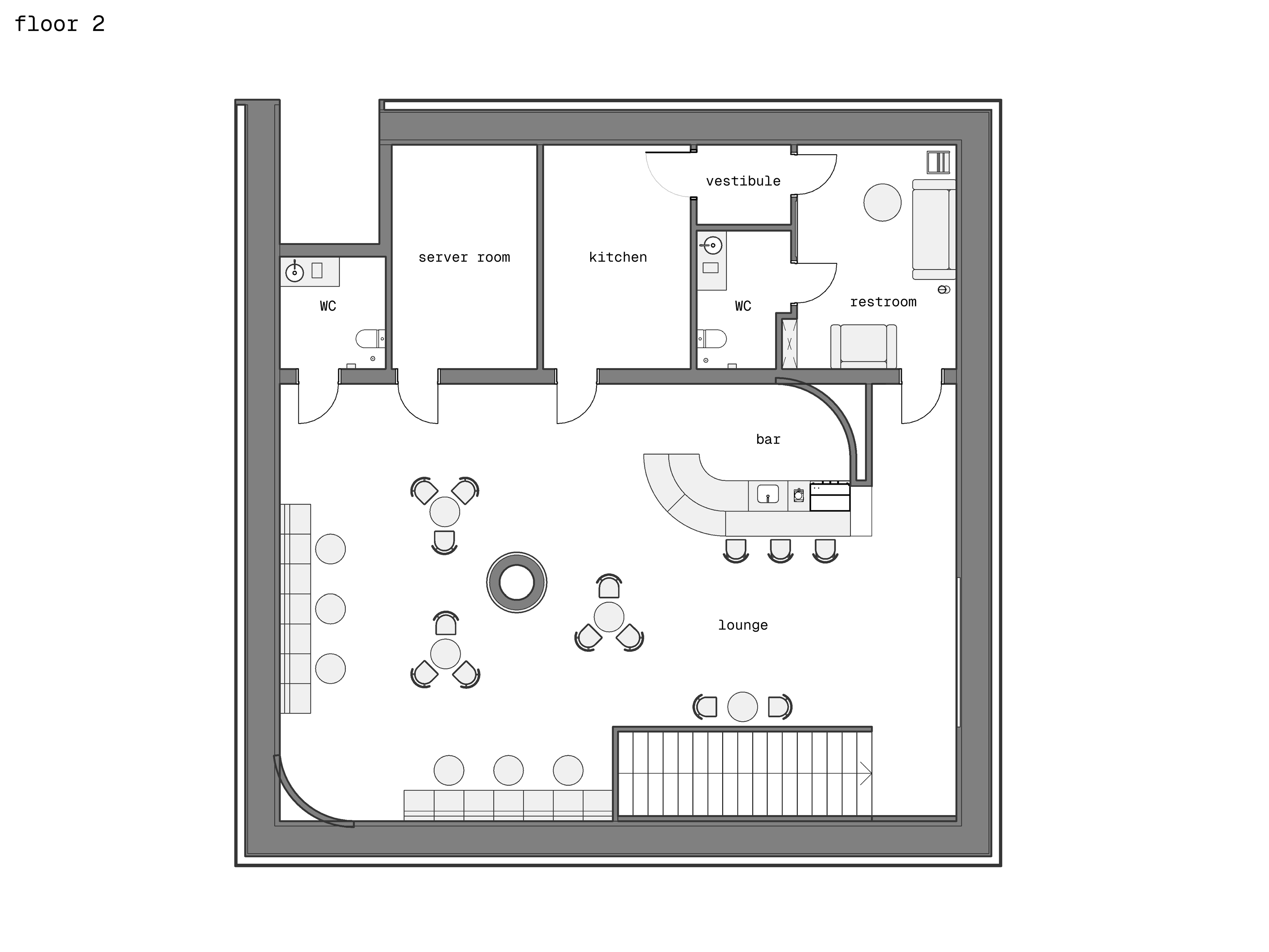
    plan ↓
 
      
     
      
     
      
     
      
    Its concept is encapsulated in the name: Terra (Earth) + byte (a unit of digital information). The space embodies the brand’s core values — exploration, analysis, and reinterpretation of Earth’s data through modern technologies.
 
      
    The architectural vision merges the aesthetics of a laboratory and industrial environment with striking geo-textures. The central element is a digital core sample, inspired by geological drillings.
 
      
     
      
    It serves as the visual and conceptual nucleus of the space. Surrounding it are a circular counter and a luminous canvas that together create an immersive effect.
 
      
    The entrance is designed as a portal: a mirrored corridor with light lines leads into a lounge area with LED screens broadcasting digital data about the Earth’s crust. Here, Earth is represented not only as a physical object but also as a vast array of information that can be explored and interpreted.
 
      
     
      
    The space is divided into two semantic parts: the base and the core. The base is a sterile, neutral environment that serves as a backdrop, while the core is the area of concentrated meaning — a zone of analysis and research, reflecting the deep processes at play.
 
      
    Further inside, the route leads to work areas for meetings and negotiations. These are designed in a formal key, with clearly structured volumes complemented by elegant lighting accents.
 
      
     
      
     
      
     
      
    The lighting introduces rhythm and delicacy into the strict geometry of the space.
 
      
     
      
     
      
    The project unfolds across two levels, connected by a staircase — another vital part of the lighting scenario. Enclosed between translucent panels with soft illumination, it functions both as a passage and as a navigational element.
 
      
     
      
    The journey concludes in an intimate lounge area designed for solitude and focus. Soft textures, a restrained palette, and natural wall motifs define this space.
 
      
     
      
    Even here, the theme of research continues — extending outward onto the large digital façades, where data becomes an integral part of the architecture.
 
      
     
      
    The project demonstrates how architecture can be more than just a workspace: it can act as a mediator between people, nature, and data, opening new ways of engaging with the world through technology.
 
      
     
      
     
      
    process ↓
 
      
     
      
     
      
    ↓ project team
 
      
     
      
     
      
    