Studio Slow | Concept Store
2025 | 129 sq.m

Architects: Sonya Plyusnina, Danil Savinsky
Visualizers: Alyona Minaeva





We created a project for the Studio Slow concept store at a new location. This space marked the brand’s first appearance in the city: a thoughtful, unhurried step that had been maturing and waiting for the right moment.




Designing a concept store differs greatly from working on standard retail. A concept store should primarily function as a pop-up — conveying mood and helping customers intuitively understand the Studio Slow approach.



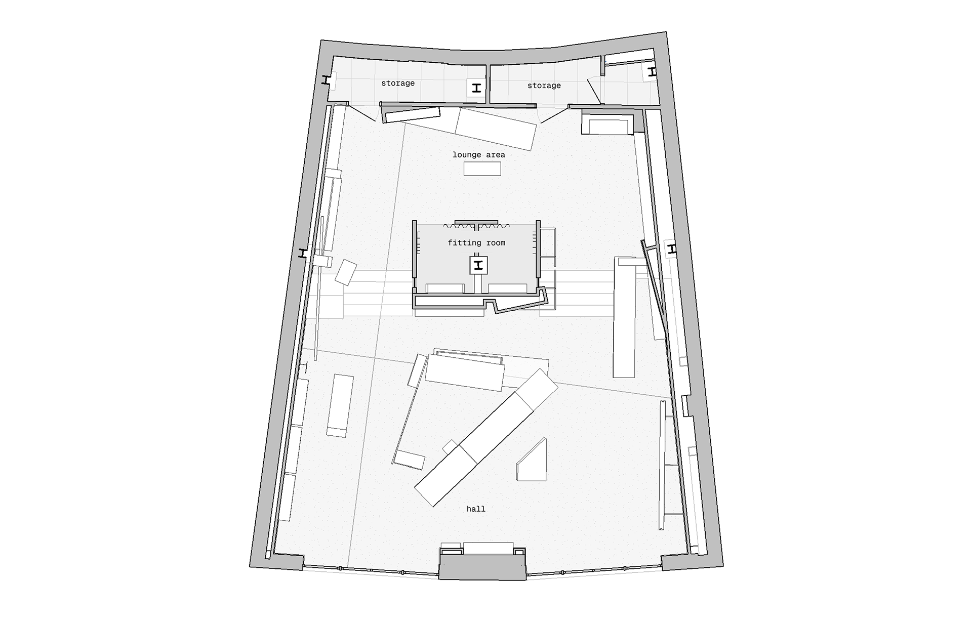
plan ↓

Vladimir Yanchevsky came to us with a challenge to push beyond our limits, giving the studio complete freedom in working with space, time, and, most importantly, ideas. Studio Slow is a team that pays equal attention to current fashion-week trends and to contemporary retail interiors worldwide. For us, it was essential to preserve honesty: the project should not pretend or create illusions — it needed to be truthful from beginning to end.



The space itself set the rules of the game: a trapezoidal layout narrowing toward the back, with a slanted ceiling descending from 5 to 4 meters. The perspective alone already made the interior unusual. We emphasized these directions — reinforcing the narrowing perspective and contrasting it with additional axes, drawing inspiration from how abstractionists work with perspective.


axonometry

Our goal was to create a space that feels solid yet engaging — dynamic without losing monumentality. The axes define the main circulation paths, the direction of clothing rails, and display zones. We worked within a grid but were not afraid to cut through the space with volumes. In the checkout area, we connected two levels: the reception desk literally intersects with the staircase, while a ceiling-height lightbox slices through the central column, enhancing the sense of depth.




Materials became another driving force of the project: textured plasters resembling various types of concrete and travertine, with light playing across their relief surfaces. On the central column, we used metal to catch reflections from the intersecting lightbox.




materials 



On the adjacent column, we applied a granite-based façade plaster — its cold texture deepens the brutalist context. All fixtures are made of metal — black, with honest seams and connections — reinforcing the sincerity of both the space and the approach.




On the front of the reception desk, black metal could not be used due to production constraints, so it was replaced with a polished metal sheet. During transportation, the sheet developed rust due to humidity. We removed the top layer but deliberately left the stains — erasing them completely would have been dishonest.




Preserving this real trace of time reinforced our belief that the project is not merely created by us, but lives its own life — aging beautifully and acquiring the character originally embedded in it.




The project resisted us at times: certain materials simply did not work within the space, forcing us to adapt solutions along the way. Near the very end, it became clear that the originally specified flooring was unsuitable. We urgently removed the flooring and exposed the existing concrete, responding to the context. The decision brought the interior closer to its environment and strengthened the sense of authenticity.






Continuing this narrative of honesty, we chose to highlight existing structural elements rather than conceal them. An I-beam in the fitting rooms was enclosed in blue glass, turning it into a museum-like exhibit.




Key accents in the space include blue glass and media screens appearing in unexpected places: one screen is wedged between columns in the main hall, while another functions as a bag stand enclosed in a glass box. The expert work of RMS Group — who became part of the realization team — helped bring the store closer to opening.




Ultimately, the project’s greatest strength was not persistence, but the ability to listen to the space. At the studio, we believe in projects that reveal their own spirit.




When a project is driven by meaning and ideas, it begins to live its own life — forming, aging gracefully, and gaining the depth that was embedded in it from the very beginning.




process ↓




↓ project team


just be kidz

follow instagram
Back to Top