Substance | Bar & Billiard
2025 | 120 sq.m

Architects: Sonya Plyusnina, Maria Soboleva, Danil Savinsky
Visualizers: Alena Minaeva 
Photographer: Dmitry Suvorov



One of the recurring challenges for us is creating and reinterpreting familiar typologies and stylistic codes. For the Substance project, the brief was to design a retro-style billiard bar: using wood, classic vintage techniques, and elements, while maintaining a sense of uniqueness that would clearly distinguish it from competitors.


axonometry

The question of “how to create uniqueness while staying within the context of a trend and a set atmosphere” became the starting point for developing the concept.






The solution was found in avoiding direct stylistic imitation and rethinking each design technique within the given framework. At the center of the composition is a mezzanine with a non-orthogonal outline, free from a rigid grid. Its sharp angles and unpredictable movement define the character of the space, while subsequent design choices reinforce this rhythm.

atmosphere ↓




Classic retro elements—wood paneling, wall sconces above tables, and the green color reminiscent of billiard cloth—were reinterpreted.






materials




Wood appears selectively, transitioning from walls to floors; sconces are hung irregularly, evoking scattered billiard balls; and the familiar “wood + green” combination is replaced by wood with an orange undertone and wine-purple tables.





accent inspirations ↓






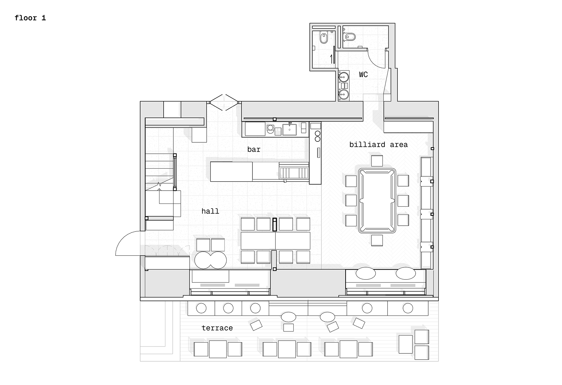
plan ↓

Background colors are set in a complex gray palette with a faded-wall effect. From the entrance to the bar area, the tone gradually darkens, creating depth and enhancing the atmosphere.







Lighting became a tool for radically altering perception. Lightboxes embedded in the mezzanine beams can change color, immersing the space in vivid red, deep blue, or soft orange. These panels go beyond expectations: they cut through partitions, integrate into walls, and expand and deform the space.

​​​​​​​


Vertical elements were also an important design tool. Thanks to engineering solutions, many columns were removed, while the remaining ones were masked and rhythmically aligned with other vertical features.




Another unexpected solution involved the air ducts: instead of a standard system, they were given a flat-oval shape, turning a technical necessity into a bold decorative element.






Thus, a cohesive image was created: understandable and connected to the retro context, yet filled with daring techniques, visual disruptions, and a rebellious spirit





wc ↓




evening edition


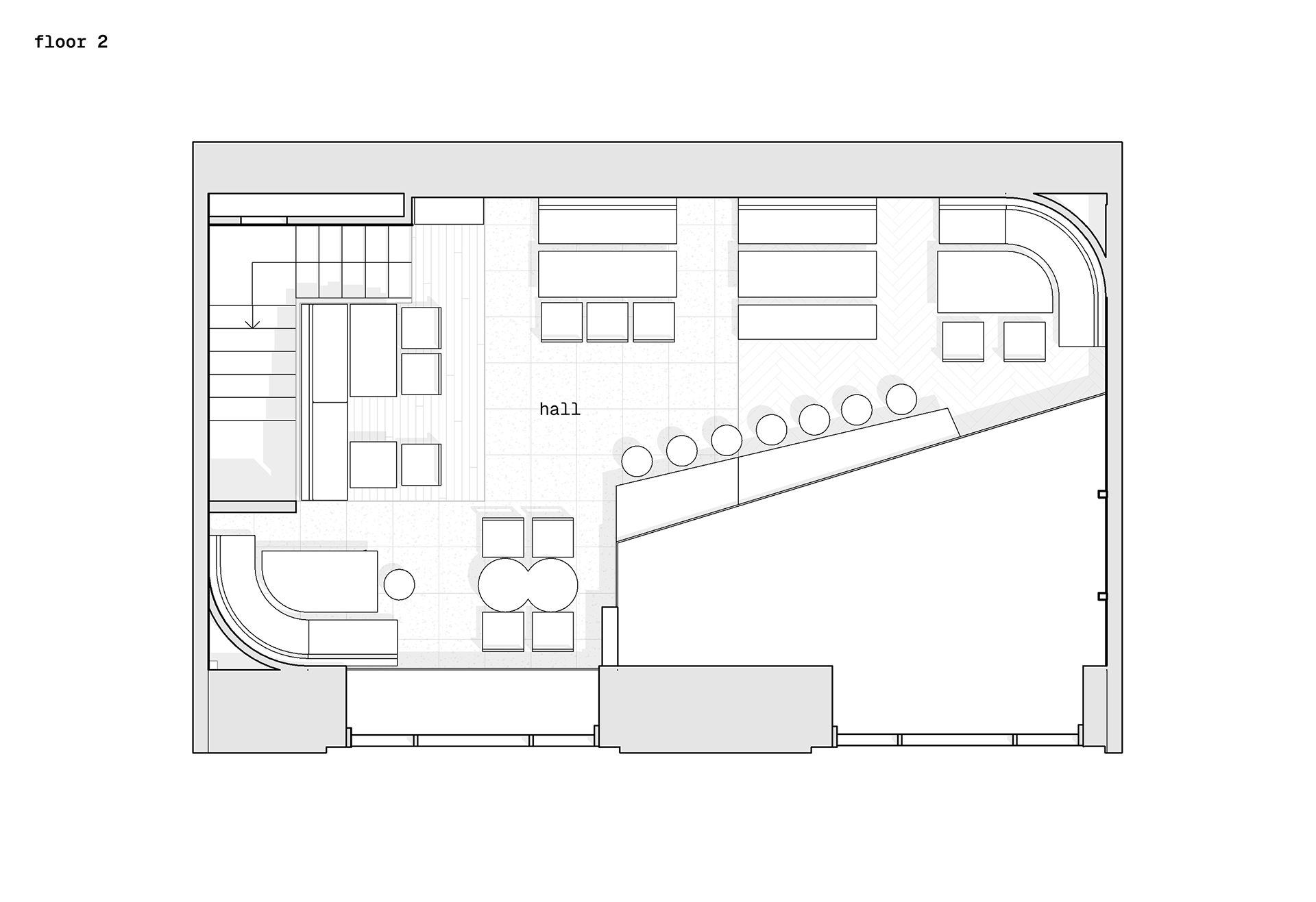
the second floor 










process ↓






↓ project team


just be kidz

follow instagram
Back to Top