
Yumms | Showroom & Desert Bar
Kidz - design studio
Designers: Anastasia Safianenko, Leonid Sobolev, Julia Anikina, Nikita Vorontsov
Supervision: Arianna Mikaya
Visualisator: Tatiana Kurochkina
Photo: Varvara Toplennikova
Choice Studio — Branding Agency
Creative Director: Aleksey Zadorozhny
Packaging Design: Ksusha Shchigoleva
CGI: Denislam Fashiev
Motion: Alisa Tukshumskaya


The creator of the brand is Mark Rodovsky or already known to everyone as Marcelo Miracles
His clothes are outrageous, ambiguous and definitely cause a buzz around
The brand began to gradually expand and the appearance of a showroom became a top priority
The brand began to gradually expand and the appearance of a showroom became a top priority
The brand already has its target audience ↓


Recognisable unique symbols. Colourful gravel, fur poufs, big velvet chair, recycled plastic
It was important to create something memorable, a little frightening in its extraordinariness,
but at the same time comfortable for meetings with friends and spending time
Choice studio developed a graphic design reflecting the concept of the institution
Delicious packaging and filling


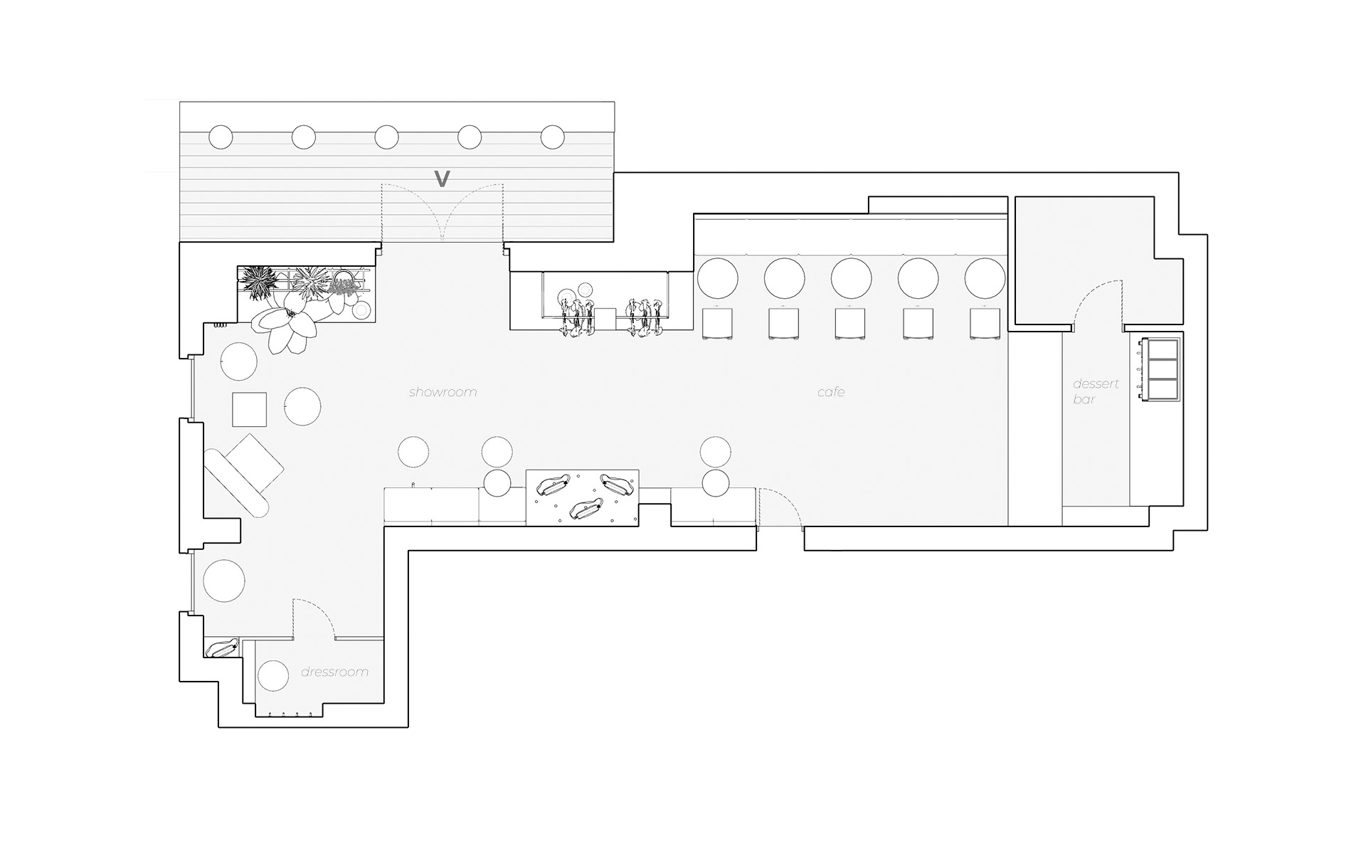
plan

60 sq.m space ↑



Hairy wall ↓


↑ Fridge with Branded beverages



↑ Outdoor sign



process ↓




